电力电缆的敷设方式
-
来源:金环宇电线发布日期:2020-03-09 15:43
1、电力电缆直埋敷设
直埋敷设是将电缆直接埋在地下的一种敷设方式,其具有投资省的显著优点,是广泛应用的一种敷设方式。直埋电缆的深度不应小于0.7m,穿越农田时不应小于1.0m。直埋电缆的沟底应无硬质杂物,沟底铺100mm厚的细土或黄沙,敷设后再加盖100mm的细土或黄沙,然后用水泥盖板?;ぃ浞笊杩矶扔Τ缋铝讲喔?0mm,也可用砖块替代水泥盖板。回填至沟的一半时,铺设警示带,回填完成后,在电缆转弯处、中间接头处、与其他管线相交处等特殊路段放置明显的方位标志和标桩,以增强防止外力破坏能力。

2、电力电缆槽敷设
电缆槽敷设是在开挖后,沟槽底板采用100mm~150mm厚混凝土垫层,两侧沟壁采用240mm砖墙,沟底铺100mm厚的细土或黄沙,敷设后再加盖100mm的细土或黄沙,盖板采用水泥盖板。深度不应小于0.7m,穿越农田时不应小于1.0m。这种方式相对直埋敷设来说,对电缆的?;ど院?,适用于地形稍复杂的地段。

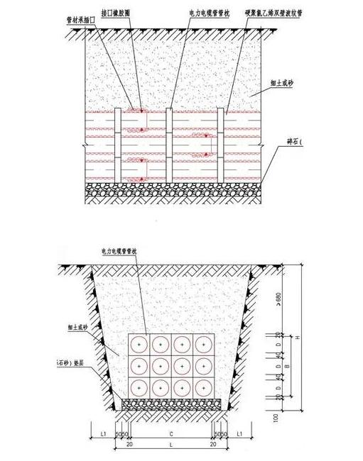
3、电力电缆?;す芊笊?/p>
保护管(又称排管)敷设一般采用低摩高强维纶水泥管或玻璃钢管等,管壁采用混凝土包封。每隔50m~60m左右设置检查井,排管顶部土壤不小于0.5m,纵向排水坡度不小于0.2%。该敷设方式主要优势在于施工相对简单,工期较短,路面无电缆沟盖板。电缆排管的不足之处在于巡视不方便,不易于故障寻测,电缆散热条件差,载流量较小等。

4、电力电缆沟敷设
电缆沟主要是按设计要求开挖并砌筑沟道,沟道的侧壁焊接承力角钢架并按要求接地,上面盖以盖板的地下沟道,就是电缆沟。它的用途就是敷设电缆的地下专用通道。
5、电力电缆隧道敷设
容纳电缆数量较多、有供安装和巡视的通道、全封闭型的地下构筑物称为电缆隧道。其敷设称为电缆隧道敷设。电缆隧道根据施工方法一般分为明挖隧道、暗挖隧道、顶管隧道、盾构隧道等。
- 上一篇:正确的选择电线电缆及敷设安装技术
- 下一篇:电力电缆敷设中应注意的问题

